泵站專用智能化變頻恒壓供水變頻器接線圖對電工有哪些實質性指導作用
泵站專用智能化變頻恒壓供水變頻器接線圖對電工有哪些實質性指導作用
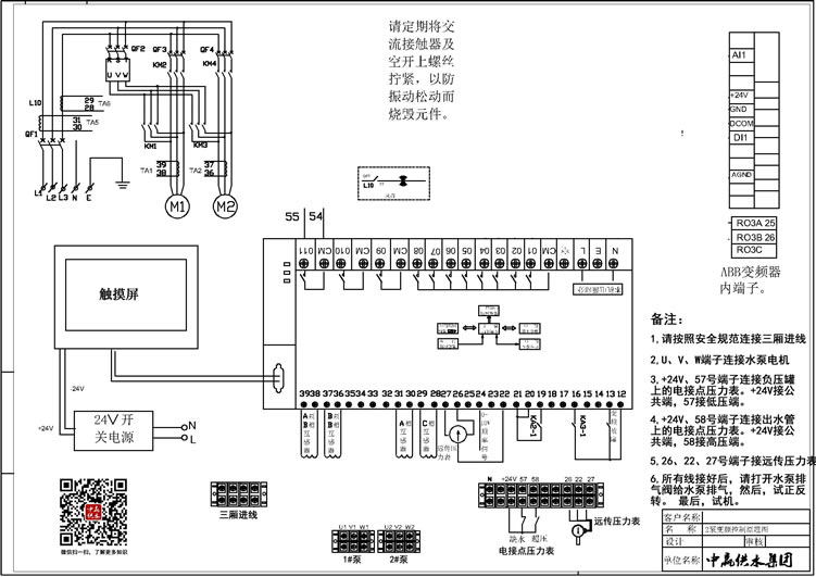
泵站專用智能化變頻恒壓供水變頻器接線圖紙是用標明尺寸的圖形和文字來說明電器元件、空開、交流接觸器、設備等的結構原理及其它要求的一種技術性文件。變頻恒壓供水變頻器接線圖是作為實現變頻供水設備將它變為現實或實物的重要依據,沒有圖紙,就沒有參照,就很難達到預期目標,更談不上嚴謹和規范,所以泵站專用智能化變頻恒壓供水變頻器接線圖紙扮演者至關重要的角色
泵站專用智能化變頻恒壓供水變頻器接線圖紙,如要了解更多,請掃圖中公眾號。
泵站專用智能化變頻恒壓供水有哪些優點:
1、 無負壓
變頻恒壓供水系統與市政管網直聯取水加壓運行不會造成市政自來水管網負壓。
2、 置壓
通過調節許可壓力控制閥可設置市政自來水管網許可吸水壓力。
3、 借壓(或疊壓)
超過許可吸水壓力和流量時可在自來水管網壓力基礎上增壓。與從普通蓄水池吸水相比運行時可減少水泵臺數或(和)降低轉速達到節能目的。
4、變頻恒壓
泵站專用智能化變頻恒壓供水設備實時通過傳感器檢測出口壓力,將檢測值和設定值進行比較運算,確定電機及水泵投入臺套數和變頻器輸出頻率(反應到電機及水泵為轉速)以追貼用水曲線實現恒壓。
5、無噪音
變頻恒壓供水采用現代設計理念,充分考慮現代人對環境的要求,選用靜音專用變頻器,運用了消音設計手段,故系統能超靜音運行。
6、停電不斷水
供電線路停電時,系統通過BY PASS等手段實現停電不斷水,即停電時系統自動切換為市政自來水壓力供水。
7、高度自動化
變頻恒壓供水系統能實現全自動控制,具有手動/自動切換、主副泵定時輪換、壓力調整、恒壓、高低電壓保護、欠相保護、漏電保護、過載保護、過熱保護、缺水保護、漏水檢測補償、不用水停車、瞬間跳閘保護等功能。另可根據用戶需求配置人機界面,可視化遠程調整、監測和維護。
泵站專用智能化變頻恒壓供水應用范圍
1、新建的住宅小區、別墅、寫字樓、綜合樓生活供水。
2、高層建筑、消防用水、賓館飯店等的生活供水。
3、氣壓給水,地面水池加壓等傳統供水系統改造。
4、各種鍋爐冷水供水系統、鍋爐熱水。
5、自來水廠的中間加壓泵站、自來水二次增壓。
6、各工礦企業的生產、生活用水、管網穩壓。
7、各種類型的循環水、冷卻水供應系統。
8、自來水壓力不能滿足要求的生活、消防加壓供水等。
- 上一篇:箱式管網疊壓無負壓變頻供水設備哪家好?其優勢是怎么脫穎而出的 2017/11/20
- 下一篇:沈陽鑫誼順達軌道交通設備有限公司訂購一個304不銹鋼水箱7. 2017/11/16


